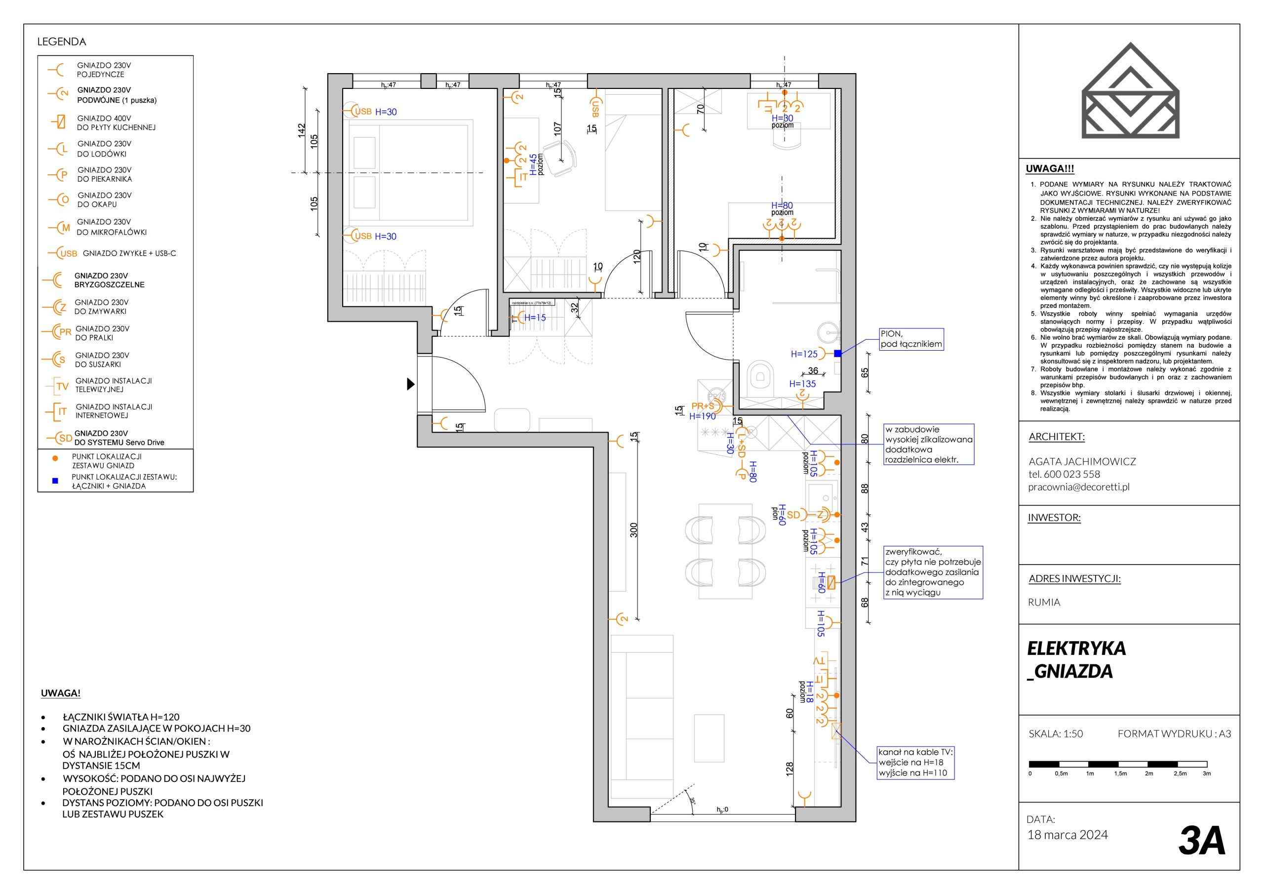
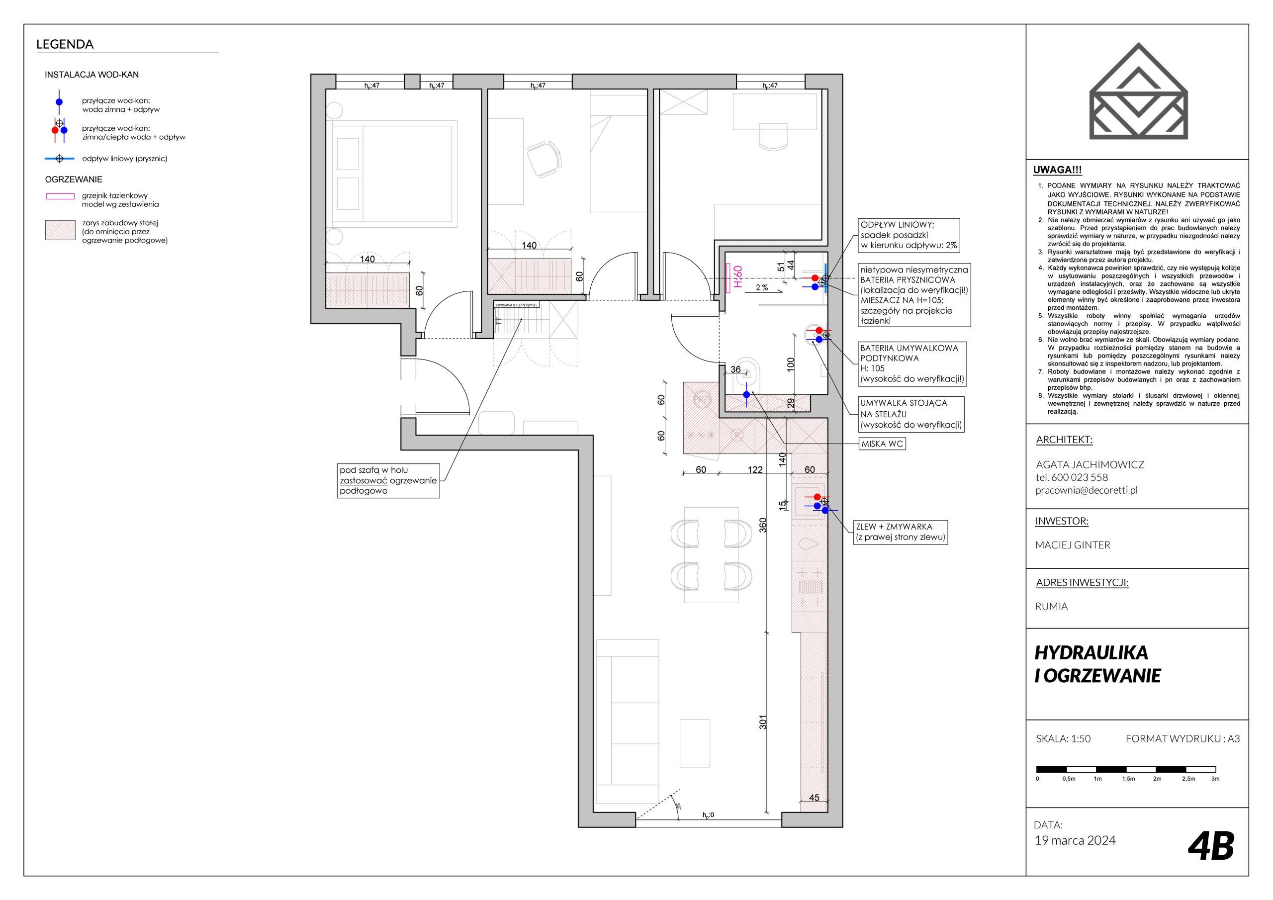
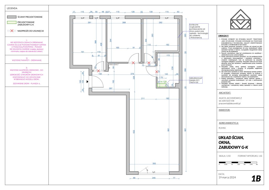
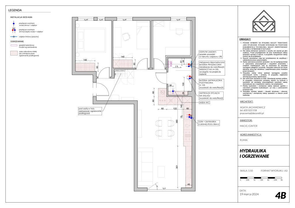
/nag

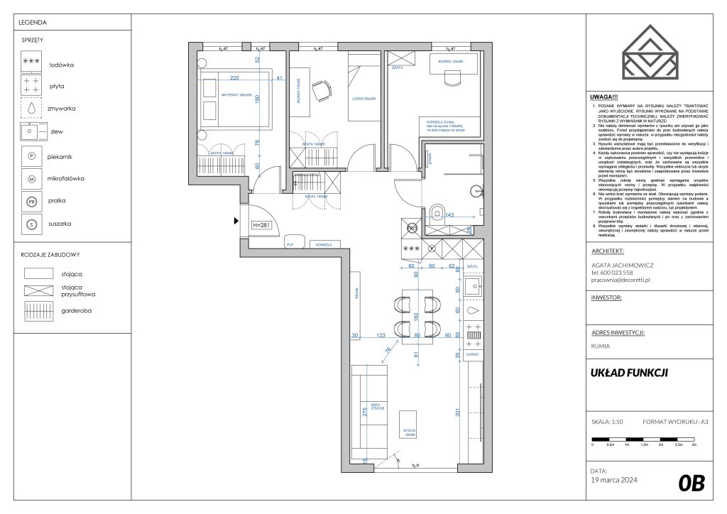
Rumia: mieszkanie 74 m2

·